308 Pinebrook DriveWaleska, GA 30183




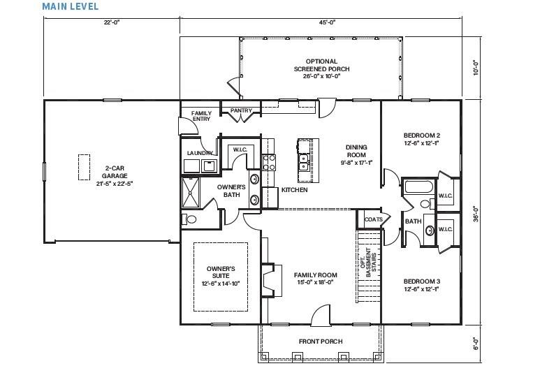
JOIN US FOR OUR MODEL HOME SHOWCASE THIS WEEKEND!!! MOVE IN READY Estate-Lot retreat in the Woodlands at Lake Arrowhead, featuring creek views on a private 0.93-acre lot. This beautifully crafted Etowah design by TIH Homes offers 3 bedrooms and 2 baths in a true ranch plan, blending comfort with stunning natural surroundings. Enjoy open-concept living with breathtaking mountain views, a gourmet kitchen with granite countertops, and ample cabinetry for both functionality and style. The private primary suite is a peaceful sanctuary, complete with a double vanity, walk-in closet, and spacious shower. A fabulous, covered front and rear porch extends your living space, perfect for enjoying the serene landscape. This inventory home is nearing completion with a projected availability date of March 2026. Don’t miss this exceptional amenity rich lifestyle. Builder offering a Greater Atlanta Home Builders Warranty for added peace of mind.
| 3 hours ago | Listing first seen on site | |
| 4 hours ago | Listing updated with changes from the MLS® |
Listings identified with the FMLS IDX logo come from FMLS and are held by brokerage firms other than the owner of this website and the listing brokerage is identified in any listing details. Information is deemed reliable but is not guaranteed. If you believe any FMLS listing contains material that infringes your copyrighted work, please click here to review our DMCA policy and learn how to submit a takedown request.
© 2017-2026 First Multiple Listing Service, Inc.

Did you know? You can invite friends and family to your search. They can join your search, rate and discuss listings with you.